أيقونة المحمّل المسبق
للبيع

Damac Islands 2 - Bahamas 2

اتصل

  • (0)
  • 29 مشاهدة
  • فبراير 16, 2026
الوصف
Damac Islands 2 – Bahamas 2 is a Damac project located in the Damac Islands 2 community, featuring villas, twin villas, and townhouses with four and five bedrooms. The architecture blends tropical motifs with modern minimalism, creating a secluded island-like atmosphere. Interiors are finished in a light color palette with accents of walnut, Fior de Bosco marble, and Calacatta Gold porcelain. Spacious layouts, private gardens, and personal pools create a sense of tranquil waterfront living. Residents have access to an eco-park, botanical garden, spa zones, saltwater pools, fitness areas, and a clubhouse with an organic pool. The “eco-living” concept combines comfort, closeness to nature, and modern technology. The complex enjoys convenient transport connections: about twenty minutes to Burj Al Arab, twenty-five minutes to the Burj area, forty minutes to Dubai International Airport, and twenty-five minutes to Al Maktoum International. DAMAC Hills, Dubai Sports City, and Motor City are fifteen minutes away .
نظرة عامة
معرّف المشروع: geniemap-7027
النوع: Villa
المستثمر: DAMAC Properties
تاريخ الانتهاء: Jun 30, 2030
Payment Plans
01

Payment Plan

20% Down Payment
No Post Handover
20% + 4% DLD + 1000 AED Oqood — On booking
55% (1% per month with milestone payments of 3%) — From 3 to 49 months after booking, 3% on 8, 14, 20, 26 months
25% — On completion
المرافق والميزات
Feature: Artificial Beach
Feature: Club house
Feature: Coworking zone
Feature: Dining outlets (coffee houses & restaurants)
Feature: Electric Vehicle Charger
Feature: Fitness Zone
Feature: Indoor Multipurpose Space
Feature: Kayaking
Feature: Kids Play Area
Feature: Landscape Open Areas
Feature: Landscaped garden
Feature: Landscaped park
Feature: Leisure areas
Feature: Open air gym
Feature: Outdoor Multipurpose Space
Feature: Picnic Area
Feature: Recreational areas
Feature: Resting Areas
Feature: Retail outlets
Feature: SPA
Feature: Shared Pool
Feature: Shared gym & fitness
Feature: Sitting Area
Feature: Social zone
Feature: Sports ground
Feature: Sunken Garden
Feature: Walking paths
Feature: Waterfall
Feature: Yoga Area
Feature: Zen Garden
الموقع
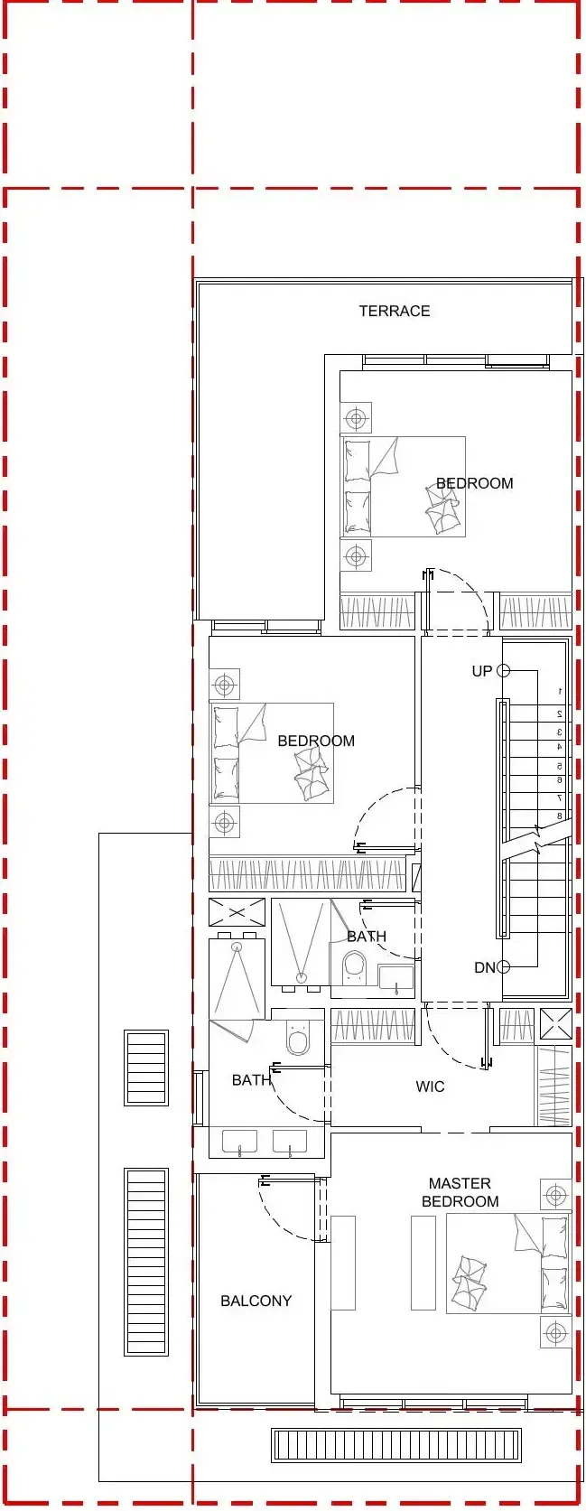
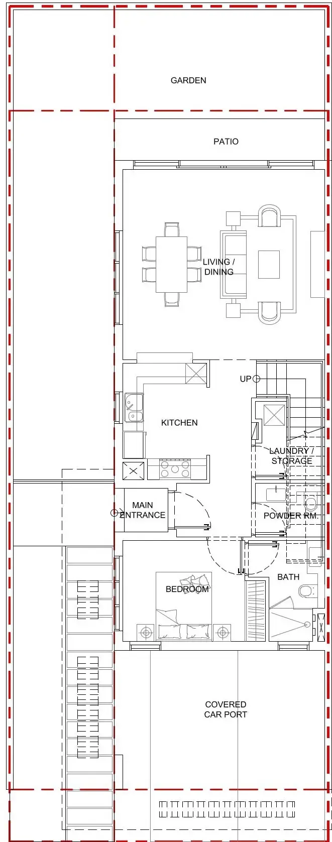
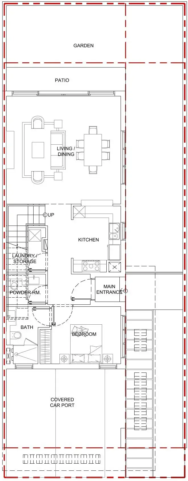
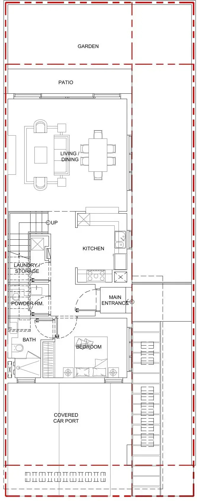
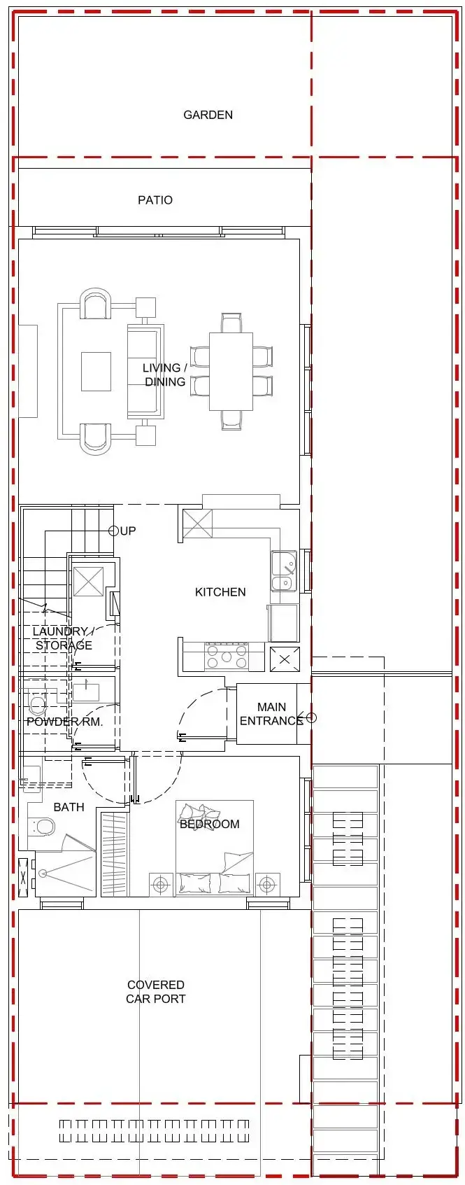
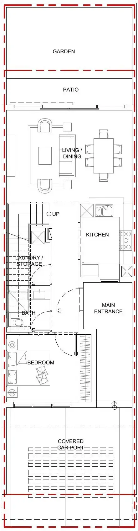
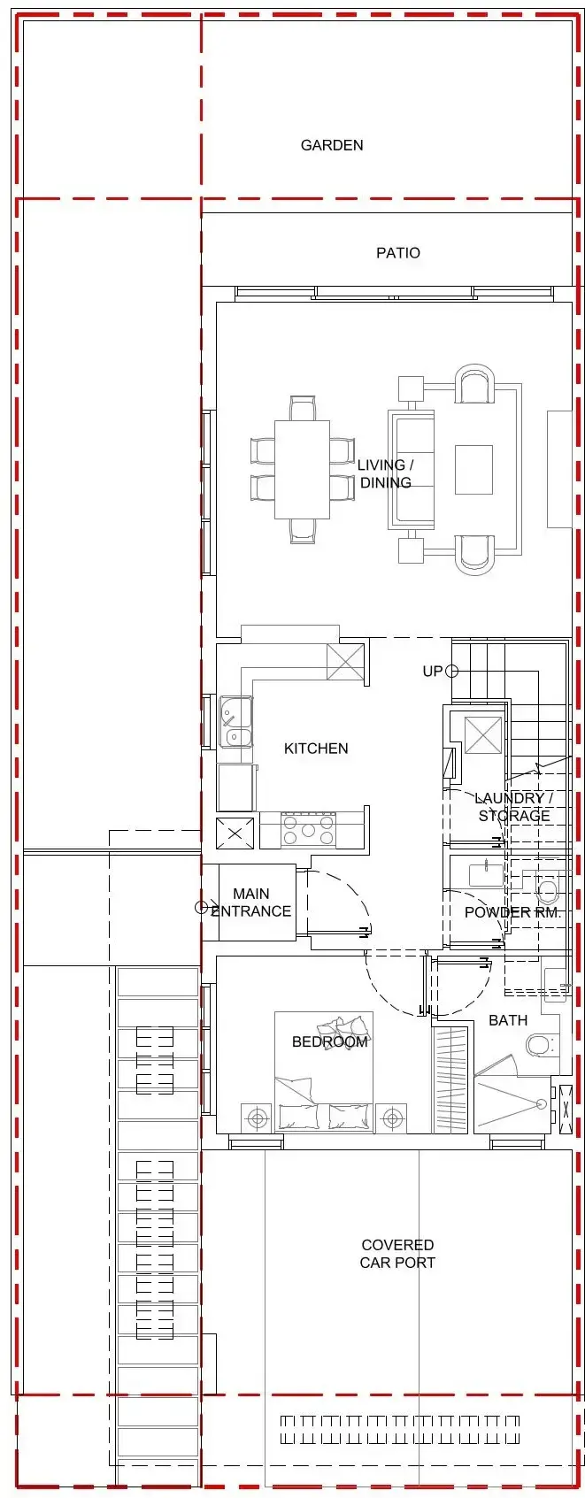
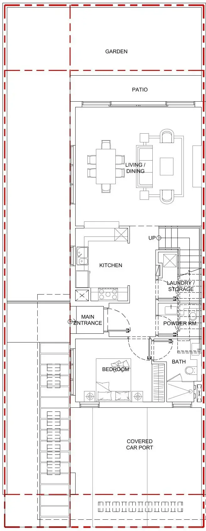
مخططات الطوابق
  • 5 BR • 2829.29 sqm • AED 3,571,000 • available
    5 BR #DIBS2/SD169/G009X02
  • 5 BR • 2829.29 sqm • AED 3,571,000 • available
    5 BR #DIBS2/SD182/G010X05
  • 5 BR • 2829.29 sqm • AED 3,571,000 • available
    5 BR #DIBS2/SD184/G010X07
  • 5 BR • 2829.29 sqm • AED 3,572,000 • available
    5 BR #DIBS2/SD314/G024X03
  • 5 BR • 3158.24 sqm • AED 3,865,000 • available
    5 BR #DIBS2/SD403/G038X06
  • 5 BR • 3158.24 sqm • AED 3,868,000 • available
    5 BR #DIBS2/SD267/G018X10
  • 5 BR • 3158.24 sqm • AED 3,869,000 • available
    5 BR #DIBS2/SD412/G040X01
  • 5 BR • 3158.24 sqm • AED 3,959,000 • available
    5 BR #DIBS2/SD129/G003X10
  • 5 BR • 3158.24 sqm • AED 3,959,000 • available
    5 BR #DIBS2/SD556/G061X01
  • 5 BR • 3158.24 sqm • AED 3,960,000 • available
    5 BR #DIBS2/SD485/G052X08
  • 5 BR • 3158.24 sqm • AED 3,963,000 • available
    5 BR #DIBS2/SD438/G045X01
  • 5 BR • 3158.24 sqm • AED 4,025,000 • available
    5 BR #DIBS2/SD327/G025X06
  • 5 BR • 3158.24 sqm • AED 4,035,000 • available
    5 BR #DIBS2/SD311/G023X10
Unit Layouts
  • 5 BR
شارك:

Write a Review

Mortgage Calculator

$

اسحب المؤشر أو أدخل المبلغ الذي تريد اقتراضه

80% 100%
$
%/سنة
$

احسب الرهن العقاري الخاص بك

أدخل سعر العقار وتفاصيل القرض أعلاه لمشاهدة الدفعات الشهرية المقدرة وإجمالي الفائدة.

جدول الاستهلاك

مبلغ القرض 0 $
إجمالي الفائدة 0 $
المبلغ الإجمالي 0 $
اكتب مراجعة
0 مراجعة
0 من 5
اتصل بنا
Live Chat
Live Chat Offline

مرحبًا! كيف يمكننا مساعدتك اليوم؟

Powered by FOB Live Chat
سيتم تحسين تجربتك على هذا الموقع من خلال السماح باستخدام ملفات تعريف الارتباط (الكوكيز).